Stan 3S+DB za prodaju, Vodice, 494 000 €

VODICE, PRODAJA, NOVOGRADNJA, POSLJEDNJI STAN NA 2. KATU SA OTVORENIM POGLEDOM

Nova ponuda!

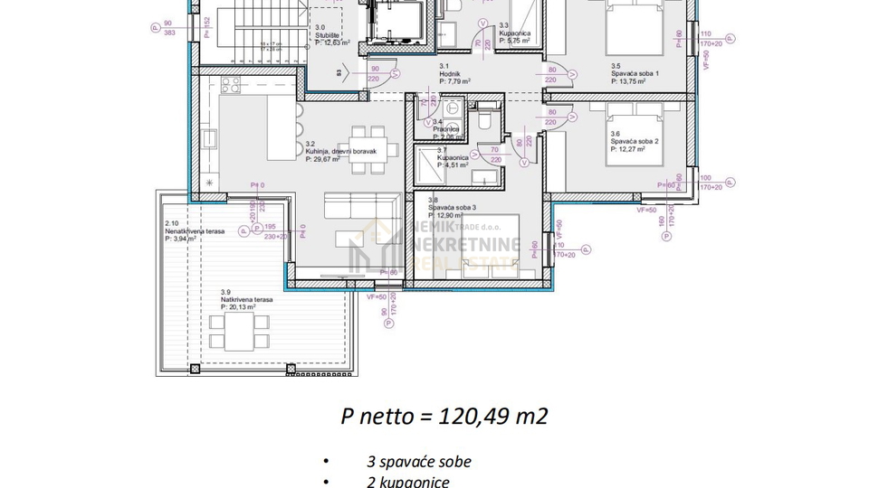
Odlična lokacija, nepunih 200 m od samog centra Vodica a opet mirno obiteljsko okruženje. Posljedni stan na 2. katu sa pogledom na more, ukupne površine od 120,49 m2.

Stan obuhvaća tri spavaće sobe, u kojima će podovi biti izvedeni kao parketni podovi, brušeni i lakirani u mat verziji, open space dnevni boravak i kuhinju sa izlazom na natkrivenu prostranu terasu od cca 24 m2, dvije kupaone, te praonicu/vešeraj. Svi ostali podovi izuzev spavaćih soba bit će izvedeni kao keramički podovi sa prvoklasnom keramikom.

Zahvaljujući jugoistočnoj orijentaciji, dnevni prostori su ispunjeni prirodnim svjetlom tijekom cijelog dana. Kvalitetno podno grijanje na struju osigurava ugodnu temperaturu i toplinu u svim dijelovima stana izuzev spavačih soba a stan ima i dimnjak.

Dodatne pogodnosti uključuju vlastito parkiralište, ostavu/skladište u podrumu veličine 34,81 m2, što pruža praktičnost za svakodnevne potrebe. U zgradi se nalazi i dizalo ( lift ) , što svakako olakšava pristup stanu i starijoj populaciji.

Vodice su poznate po svom mirnom okruženju, blizini mora i razvijenoj infrastrukturi, što ovu nekretninu čini iznimno atraktivnom za obiteljski život ili ulaganje. S obzirom na lokaciju i karakteristike, stan pruža visoku kvalitetu stanovanja i odličnu povezanost sa svim važnim sadržajima upravo zbog navedene blizine centra što ovoj nekretnini svakako podiže vrijednost.

Za dodatne informacije ili dogovor oko razgledavanja, slobodno nas kontaktirajte.

Kupac ne plaća porez na nekretninu!



* Zainteresirani kupci mogu dobiti sve potpune informacije o svakoj oglašenoj nekretnini te istu razgledati zajedno sa našim agentom samo i isključivo uz prethodno potpisivanje ugovora o posredovanju o prometu nekretnina.

Osnovne informacije

  • Šifra objektaIRO-569
  • Prodajna cijena494 000 € (3 722 043 kn)
  • LokacijaVodice (22211)
  • Kvadratura120,49 m2
  • Tip stana3S+DB
  • Broj soba4
  • Broj spavaćih soba3
  • Broj kupaonica2
  • Kat2
  • Broj etažaJednoetažni
  • Ukupno katova2
  • Vrsta zgradeStambena
  • Godina izgradnje2026
  • Udaljenost od centra200 m
  • Br. parkirnih mjesta1

Razna svojstva

  • Ostava (izba)
  • Lift
  • Podrum
  • Alu stolarija
  • Pogled na more

Grijanje

  • Struja
  • Podno grijanje

Instalacije

  • Struja
  • Voda
  • Kanalizacija

Stanje zgrade

  • Novogradnja

Orijentacija

  • Jug
  • Istok

U blizini

  • Centar naselja
  • Javna plaža

Dokumentacija

  • Građevinska dozvola

Prikaz nekretnine na karti

Osnovne informacije

  • Šifra objektaIRO-569
  • Prodajna cijena494 000 € (3 722 043 kn)
  • LokacijaVodice (22211)
  • Kvadratura120,49 m2
  • Tip stana3S+DB
  • Broj soba4
  • Broj spavaćih soba3
  • Broj kupaonica2
  • Kat2
  • Broj etažaJednoetažni
  • Ukupno katova2
  • Vrsta zgradeStambena
  • Godina izgradnje2026
  • Udaljenost od centra200 m
  • Br. parkirnih mjesta1

Kontaktiraj agenta

SANJA ANTULOV-MIKIĆ
Ova stranica ostavlja " kolačiće" na Vašem kompjutoru za potrebe navigacije i anonimizirane statistike pristupa. Korištenjem ove stranice prihvaćate i potvrđujete ove "kolačiće".